Dự án: "reflex "
Dự án kết hợp: "reflex "
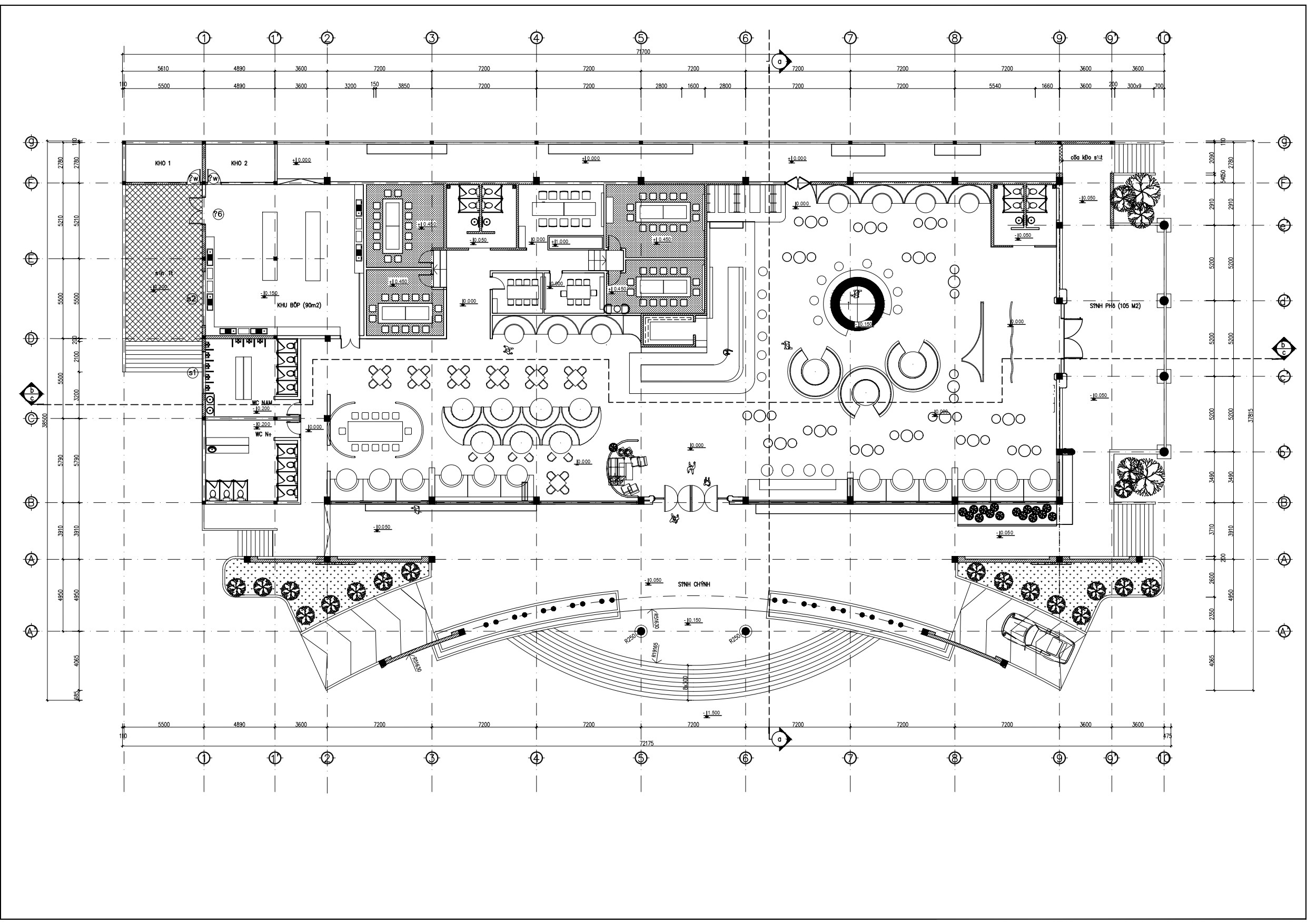
Địa điểm: Lô A1,2,3 đường 2/9, quận Hải Châu, tp Đà Nẵng
Mục đích sử dụng chính: kinh doanh ăn uống
Quy mô: 1 tầng
Diện tích khu đất: 2400 m2
Diện tích xây dựng: 1240 m2
Năm thiết kế: 2024.
Project gallery
Dự án kết hợp: "reflex "
Địa điểm: Lô A1,2,3 đường 2/9, quận Hải Châu, tp Đà Nẵng
Mục đích sử dụng chính: kinh doanh ăn uống
Quy mô: 1 tầng
Diện tích khu đất: 2400 m2
Diện tích xây dựng: 1240 m2
Năm thiết kế: 2024.
Nhóm thiết kế: Lương Minh Duy, Đặng Linh Chi.
Khách hàng: chị Hoàn
Dự án tạo sự phối hợp giữa các thế lực đối lập, sự cùng tồn
tại của Âm và Dương và trạng thái phân đôi liên tục tồn tại trong tâm trí dường
như giữa cho sự cân bằng được khôi phục trên thế giới như chúng ta biết. Tại
"reflex" trí tưởng tượng về không gian của chúng ta sẽ bay lên một
chuyến bay đặt câu hỏi và vẫy gọi khái niệm về thời gian để thả lỏng.
Ngôn ngữ thiết kế kiến trúc trong câu chuyện không gian là
chào đón những người khách hàng vào vòng tay của "reflex", mang đến
cho họ hai bầu không khí khác nhau dưới một mái nhà khi từ sáng chuyển sang tối.